产品描述
1、结构紧凑、设计合理、阀门刚性好、通道流畅,流量系数小
2、密封面采用不锈钢和硬质合金,使用寿命长
3、采用柔性石墨填料、密封可靠,操作轻便灵活
4、驱动方式为手动、气动、电动、齿轮传动
5、结构形式为弹性楔式单闸板、刚性楔式单闸板双闸板型式
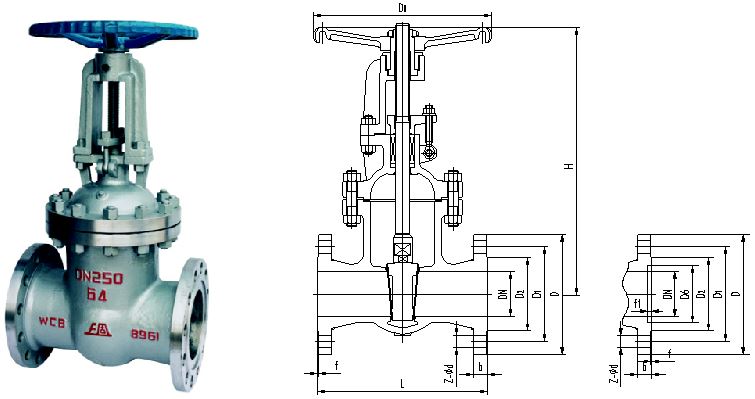
主要连接及外形尺寸(PN16)
公称通径
主要外形尺寸及连接尺寸(mm)
阀门尺寸mm
法兰连接尺寸mm(JB/T79)
L
H
D0
D
D1
D2
b
f
z-Φd
15
130
220
120
95
65
45
14
2
4-Φ14
20
150
255
140
105
75
55
14
2
4-Φ14
25
160
275
160
115
85
65
14
2
4-Φ14
32
180
280
180
135
100
78
16
2
4-Φ18
40
200
300
200
145
110
85
16
3
4-Φ18
50
250
358
240
160
125
100
16
3
4-Φ18
65
265
375
240
180
145
120
18
3
4-Φ18
80
280
433
280
195
160
135
20
3
8-Φ18
100
300
502
320
215
180
155
20
3
8-Φ18
125
325
612
360
245
210
185
22
3
8-Φ18
150
350
676
360
280
240
210
24
3
8-Φ23
200
400
820
400
335
295
265
26
3
12-Φ23
250
450
969
450
405
355
320
30
3
12-Φ25
300
500
1142
560
460
410
375
30
3
12-Φ25
350
550
1280
640
520
470
435
34
4
16-Φ25
400
600
1452
640
580
525
485
36
4
16-Φ30
450
650
1541
720
640
585
545
40
4
20-Φ30
500
700
1676
720
705
650
608
44
4
20-Φ34
600
800
1874
800
840
770
718
48
5
20-Φ41
700
900
2139
880
910
840
788
50
5
24-Φ41
800
1000
2293
980
1020
950
898
52
5
24-Φ41
900
1100
2595
1080
1125
1050
998
54
5
28-Φ41
1000
1200
2733
1180
1255
1170
1110
56
5
28-Φ48
1200
1350
3032
1300
1485
1390
1325
58
5
32-Φ54
主要连接及外形尺寸(PN25)
公称通径
主要外形尺寸及连接尺寸(mm)
阀门尺寸mm
法兰连接尺寸mm(JB/T79)
L
H
D0
D
D1
D2
b
f
z-Φd
15
130
220
120
95
65
45
16
2
4-Φ14
20
150
255
140
105
75
55
16
2
4-Φ14
25
160
275
160
115
85
65
16
2
4-Φ14
32
180
280
180
135
100
78
18
2
4-Φ18
40
200
300
200
145
110
85
18
3
4-Φ18
50
250
358
240
160
125
100
20
3
4-Φ18
65
265
375
240
180
145
120
22
3
8-Φ18
80
280
433
280
195
160
135
22
3
8-Φ18
100
300
502
320
230
190
160
24
3
8-Φ23
125
325
612
360
270
220
188
28
3
8-Φ25
150
350
676
360
300
250
218
30
3
8-Φ25
200
400
820
400
360
310
278
34
3
12-Φ25
250
450
969
450
425
370
332
36
3
12-Φ30
300
500
1142
560
485
430
390
40
4
16-Φ30
350
550
1280
640
550
490
448
44
4
16-Φ34
400
600
1452
640
610
550
505
48
4
16-Φ34
450
650
1541
720
660
600
555
50
4
20-Φ34
500
700
1676
720
730
660
610
52
4
20-Φ41
600
800
1874
800
840
770
718
56
5
20-Φ41
700
900
2139
880
955
875
815
60
5
24-Φ48
800
1000
2293
980
1070
990
930
64
5
24-Φ48
主要连接及外形尺寸(PN40)
公称通径
主要外形尺寸及连接尺寸(mm)
阀门尺寸mm
法兰连接尺寸mm(JB/T79)
L
H
D0
D
D1
D2
D6
b
f
f2
z-Φd
20
150
256
140
105
75
55
51
16
2
4
4-Φ14
25
160
275
160
115
85
65
58
16
2
4
4-Φ14
32
180
287
180
135
100
78
66
18
2
4
4-Φ18
40
200
323
200
145
110
85
76
18
3
4
4-Φ18
50
250
372
280
160
125
100
88
20
3
4
4-Φ18
65
280
395
280
180
145
120
110
22
3
4
8-Φ18
80
310
457
320
195
160
135
121
22
3
4
8-Φ18
100
350
552
360
230
190
160
150
24
3
4
8-Φ23
125
400
634
400
270
220
188
176
28
3
4.5
8-Φ25
150
450
708
400
300
250
218
204
30
3
4.5
8-Φ25
200
550
858
450
375
320
282
260
38
3
4.5
12-Φ30
250
650
1015
560
445
385
345
313
42
3
4.5
12-Φ34
300
750
1203
640
510
450
408
364
46
4
4.5
16-Φ34
350
850
1341
640
570
510
465
422
52
4
5
16-Φ34
400
950
1492
720
655
585
535
474
58
4
5
16-Φ41
主要连接及外形尺寸(PN64)
公称通径
主要外形尺寸及连接尺寸(mm)
阀门尺寸mm
法兰连接尺寸mm(JB/T79)
L
H
D0
D
D1
D2
D6
b
f
f2
z-Φd
20
190
258
180
125
90
68
51
20
2
4
4-Φ18
25
210
310
200
135
100
78
58
22
2
4
4-Φ18
32
230
320
200
150
110
82
66
24
2
4
4-Φ23
40
240
360
240
165
125
95
76
24
3
4
4-Φ23
50
250
372
280
175
135
105
88
26
3
4
4-Φ23
65
280
395
280
200
160
130
110
28
3
4
8-Φ23
80
310
458
320
210
170
140
121
30
3
4
8-Φ23
100
350
553
360
250
200
168
150
32
3
4.5
8-Φ25
125
400
638
400
295
240
202
176
36
3
4.5
8-Φ30
150
450
718
450
340
280
240
204
38
3
4.5
8-Φ34
200
550
873
560
405
345
300
260
44
3
4.5
12-Φ34
250
650
1053
640
470
400
352
313
48
3
4.5
12-Φ41
300
750
1203
640
530
460
412
364
54
4
4.5
16-Φ41
主要连接及外形尺寸(PN100)
公称通径
主要外形尺寸及连接尺寸(mm)
阀门尺寸mm
法兰连接尺寸mm(JB/T79)
L
H
D0
D
D1
D2
D6
b
f
f2
z-Φd
25
210
310
200
135
100
78
58
24
2
4
4-Φ18
32
230
320
240
150
110
82
66
24
2
4
4-Φ23
40
240
360
280
165
125
95
76
26
3
4
4-Φ23
50
250
490
360
195
145
112
88
28
3
4
4-Φ25
65
280
540
400
220
170
138
110
32
3
4
8-Φ25
80
310
573
400
230
180
148
121
34
3
4
8-Φ25
100
350
575
400
265
210
172
150
38
3
4
8-Φ30
125
400
744
560
310
250
210
176
42
3
4.5
8-Φ34
150
450
800
560
350
290
250
204
46
3
4.5
12-Φ34
200
550
800
560
430
360
312
260
54
3
4.5
12-Φ41
250
650
1050
640
500
430
382
313
60
3
4.5
12-Φ41
300
750
1208
640
585
500
442
364
70
4
4.5
16-Φ48
主要连接及外形尺寸(PN160)
公称通径
主要外形尺寸及连接尺寸(mm)
阀门尺寸mm
法兰连接尺寸mm(JB/T79)
L
H
D0
D
D1
D2
D6
b
f
f2
z-Φd
15
170
230
200
110
75
52
40
24
2
4
4-18
20
190
260
200
130
90
62
51
26
2
4
4-23
25
210
280
280
140
100
72
58
28
2
4
4-23
32
230
312
320
165
115
85
66
30
2
4
4-25
40
240
350
320
175
125
92
76
32
3
4
4-27
50
300
512
360
215
165
132
88
36
3
4
8-25
65
340
560
360
245
190
152
110
44
3
4
8-30
80
390
585
400
260
205
168
121
46
3
4
8-30
100
450
631
450
300
240
200
150
48
3
4.5
8-34
125
525
723
560
355
285
238
176
60
3
4.5
8-41
150
600
820
640
390
318
270
204
66
3
4.5
12-41
200
750
990
720
480
400
345
250
78
3
4.5
12-48
主要零件材质
材料代号
阀体、阀盖
阀板、阀座
阀杆
阀杆螺母
填料
手轮
C
WCB 碳钢
碳钢+硬质合金或不锈钢
20Cr13
ZQAL9-4
石墨
可锻铸铁
P
CF8 (304 )不锈钢
不锈钢
304
ZQAL9-4
PTFE
可锻铸铁
PL
CF3 (304 L) 不锈钢
不锈钢
304L
ZQAL9-4
PTFE
可锻铸铁
R
CF8M (316) 不锈钢
不锈钢
316
ZQAL9-4
PTFE
可锻铸铁
RL
CF3M(316L)不锈钢
不锈钢
316L
ZQAL9-4
PTFE
可锻铸铁
I
WC6 铬钼钢
合金钢+硬质合金
38CrMoAL
ZQAL9-4
石墨
可锻铸铁
V
WC9 铬钼钢
合金钢+硬质合金
25Cr2MoVA
ZQAL9-4
石墨
可锻铸铁
其它特殊材质我公司亦可根据客户需求量身定做。
主要性能特性
壳体材料
适用介质
适用温度(℃)
碳素钢(C型)
水、蒸汽、油品
≤425
铬镍钛钢(P型)
硝酸类
≤200
铬镍钼钛钢(R型)
醋酸类
≤200
铬钼钢(I型)
水、蒸汽、油品
≤550
公称压力PN(MPa)
壳体
试验压力(MPa)
上密封
密封(液)
密封(气)
1.6
2.4
1.8
0.6
1.8
2.5
3.8
2.8
0.6
2.8
4
6
4.4
0.6
4.4
6.4
9.6
7
0.6
7
10
15
11
0.6
11
16
24
18
0.6
18
执行标准
设计规范:GB/T 12234
结构长度:GB/T 12221
连接法兰:GB/T9113、HG/T20592、HG/T20615、JB/T 79
试验与检验:GB/T13927、JB/T 9092
压力-温度:GB/T 9131
产品标识:GB/T 12220
存储维护:
1.阀门应被存贮在室内于干燥和通风处。通道的端口应用盖子塞住。
2.长期存贮的阀门应进行定期检查和清理,特别是清理阀座密封表面,防止被损坏。
3.如果存贮的时间超过18个月,阀门在安装使用前应进行测试,并做好记录。
安装维护:
1.安装前重新确认阀门标识(如型号、公称通径、公称压力、材料) 是依据管线系统的要求标识。
2.安装前仔细地检查阀门的通道和密封表面。如有任何的赃物,应清 理干净。
3.安装前,确保所有的螺栓已拧紧。
4.安装前,确保填料被压紧。但不应妨碍阀杆的移动。
5. 安装阀门的地方应是方便于检测和操作的,最好的位置应和管线是 水平的,并且手轮在上阀杆是垂直的。
更多产品






